Overview
Assignment
The assignment was to design and build an electro-mechanical penny arcade game that players find enjoyable, entertaining, rewarding and/or amazing.. The game must have been suitable for all ages. Components of the project involved working with sensors, driving actuators, designing event driven software and implementing that software in C on the C32 Board. The lab kit contained sensors, signal and power transistors. Teams were limited to an expenditure of $150.00/team of three for all materials and parts used in the construction of the project. Materials from the lab kit or the Cabinet of Freedom (or scavenged) did not count against the limit. All other items counted at their "fair market value." Our team had 2.5 weeks to complete the project.
Game Concept
Pinball Soccer is a new take on an arcade classic: Pinball. The game can be played either by one player against the "computer," or as a two-player game with the 2nd player controlling the goalie. The objective is simple: to outscore your opponent in the allotted time.
Gameplay
Each game begins with the insertion of a penny, which puts 60 seconds on the game clock. Before starting the game, the player can adjust the difficulty level, which determines the goalie speed. Balls enter play through a throw in on the right side. Once the ball is in play, the player tries to score by actuating the left and right flippers. Only a well-timed strike will carry enough speed to get by the goalie. The computer goalie is designed to move in a simple back-and-forth pattern, but its motion can also be controlled by a second player through a direction change button on the left side. While the player is trying to score on the goalie, he must also protect his own goal, or hope that the goalie doesn't send one down the sidewall. When time expires, the player is rewarded with limited edition soccer memorabilia for winning.
Bill of Materials
One of the constraints on the project was the $150 limit on construction costs. Though dead-end ideas, SWAG, and consumables added some additional cost to the team, the final cost of the finished game, for our team, was just $136.66 thanks to liberal use of the 'Cabinet of Freedom', donated materials, and a little bit of creativity.
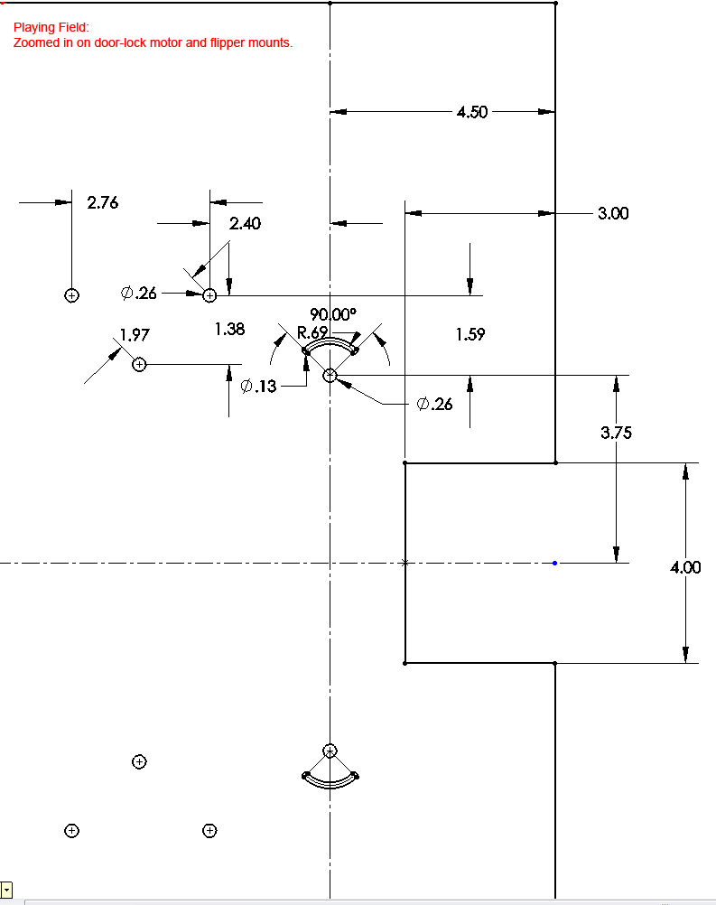
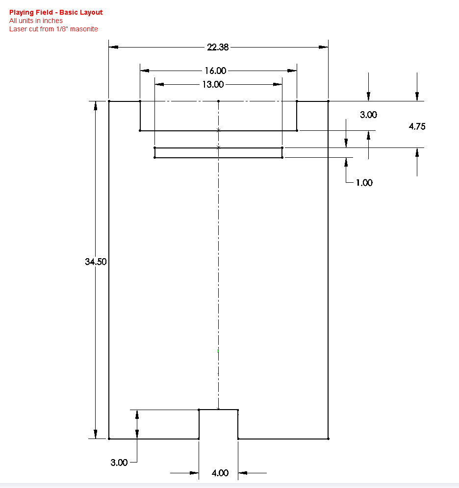
Mechanical Design
The mechanical design of the soccer pinball game was something of an evolutionary process. Unlike many teams, we severely limited our use of the laser cam and CAD, and started the project early by building a sturdy wood frame with the dimensions specified in the project assignment (2' x 3'). The mechanical simplicity of our game, and our use of scavenged mechanicals for the most complicated components of the drive train, such as the goalie drive, meant that only the playing field itself, and the flipper surfaces needed to be laser cut. Dimensioned drawings of each of these components are below. All other mechanicals were fabricated using hard board and foam core with simple cutting tools.
